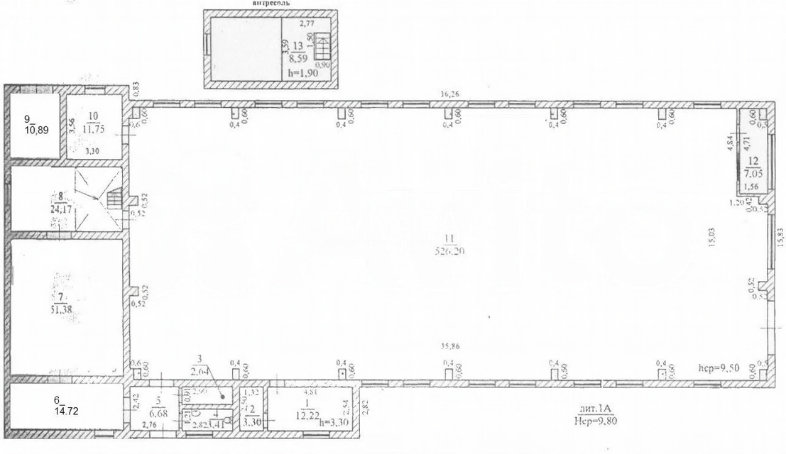
Склад 539 м² с эстакадой
| Арендная плата (Помесячно) | 194 040 |
|---|---|
| Цена кв.м. в год | 0 |
| Тип коммерческой | Склад |
| Площадь, кв.м. | 539 |
| Этаж | 1 |
| Коммунальные услуги включены | Нет |
| Тип здания | Другой |
| Санузел | Совмещенный |
| Ремонт | Чистовая |
| Тип парковки | На улице |
| Вход cian (avito) | Отдельный с улицы |
| Тип аренды | Прямая |
| Планировка cian | Открытая |
| Возможность написать сообщение | Да |
| Планировка avito | Открытая |
| Отделка помещения коммерческая | Чистовая |
| Право собственности | Собственник |
| Залог (avito) | Без залога |
| Способ связи avito | По телефону и в сообщениях |
| Вариант задания цены (avito) - Аренда | в месяц |
| Статус готовности | В эксплуатации |
| Электричество | Есть |
| Мощность электросети, в кВт | 30 |
| Удаленность от дороги (авито) | Первая линия |
| Тип здания (Avito) | Другой |
| Населенный пункт | Ульяновск |
|---|---|
| Район города | Засвияжский |
| Улица | улица Герасимова |
Склад 539 м² с эстакадой на Московском шоссе
АРЕНДА ОТ СОБСТВЕННИКА!
Сдаётся сухое неотапливаемое складское помещение в стратегически важной локации с прямым заездом с Московского шоссе. Ранее объект успешно эксплуатировался транспортной компанией ПЭК.
КЛЮЧЕВЫЕ ПРЕИМУЩЕСТВА ДЛЯ ЛОГИСТИКИ:
✅ Мощная зона разгрузки: Собственная эстакада, позволяющая одновременно разгружать до 2 фур.
✅ Защита от осадков: Перед центральными воротами и эстакадой установлен просторный навес — ваш товар всегда будет сухим при приемке.
✅ Удобный заезд: Прямое примыкание к Московскому шоссе обеспечивает быструю логистику без заездов вглубь города.
✅ Парковка: Предусмотрены места для легкового автотранспорта сотрудников и клиентов.
Технические характеристики:
- Площадь: 539 кв.м.
- Тип: Холодный склад (сухой, надежная кровля).
- Ворота: Центральные, подходят для крупнотоннажного транспорта.
- Территория: Охраняемая, с удобным маневрированием для большегрузов
- Высота потолков 9,5 м
Условия аренды:
— Прямой договор с собственником.
— Помещение полностью свободно и готово к работе.
— Цена: 194 040 рублей/месяц ( всего 270 рублей / кв м)
Звоните прямо сейчас! Организуем оперативный показ. Идеальный вариант для распределительного центра или оптового склада.
🏛Номер объекта в базе # 23117
Аренда: 194 040 рублей/месяц
Звоните прямо сейчас и мы подберём для Вас персональные условия аренды!













