Здание 291.1 м²
20 000 000
Обзор№ - 22657
| Стоимость | 20 000 000 |
|---|---|
| Тип коммерческой | Отдельностоящее здание |
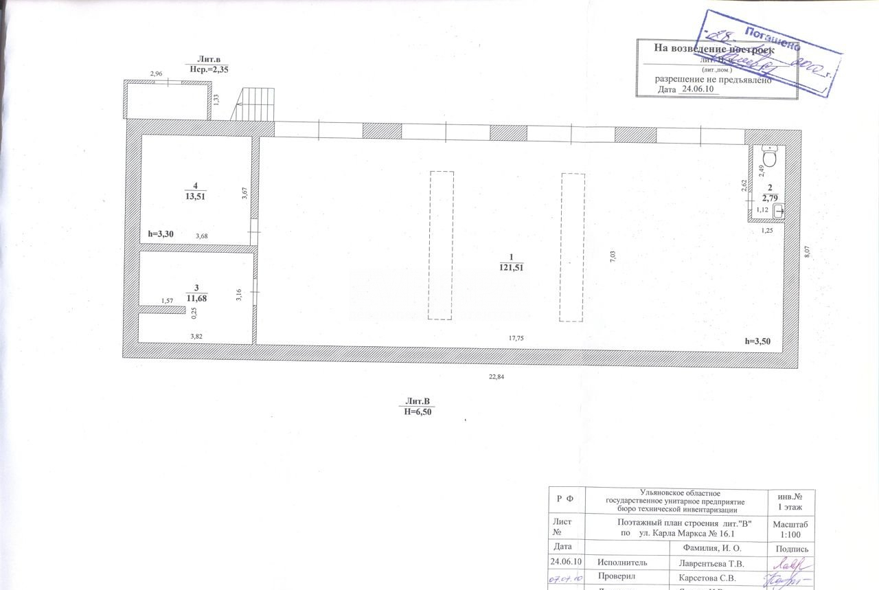
| Площадь, кв.м. | 291.1 |
| Этаж | 1 |
| Коммунальные услуги включены | Нет |
| Тип здания | Административное здание |
| Санузел | Совмещенный |
| Ремонт | Чистовая |
| Тип парковки | На улице |
| Вход cian (avito) | Отдельный с улицы |
| Тип сделки авито коммерческая | Продажа |
| Планировка cian | Смешанная |
| Возможность написать сообщение | Да |
| Планировка avito | Кабинетная |
| Отделка помещения коммерческая | Чистовая |
| Право собственности | Собственник |
| Способ связи avito | По телефону и в сообщениях |
| Вариант задания цены (avito) | за всё |
| Статус готовности | В эксплуатации |
| Электричество | Есть |
| Мощность электросети, в кВт | 20 |
| Удаленность от дороги (авито) | Вторая линия и дальше |
| Тип здания (Avito) | Административное здание |
Адрес
| Населенный пункт | Ульяновск |
|---|---|
| Район города | Ленинский |
| Улица | улица Карла Маркса |
В избранное Здание 291.1 м²
Описание Здание 291.1 м² БЕЗ КОМИССИИ ДЛЯ ПОКУПАТЕЛЯ! Номер объекта в базе #22657 Площадь: 291.1 кв.м! Земельный участок в собственности, площадью 493,5 кв.м! Этаж: 1 и 2 Этажность: 2 Все коммуникации проведены Состояние: в арендной эксплуатации! Доступ в помещение: 24/7 Электроснабжение: 20 кВт Высота потолков: от 2,8 м. до 3,5 м Кол-во входов: 3 Санузел: Совмещённый Назначение: Без профиля, любое коммерческое использование Примечание: Основные характеристики и преимущества помещения: - центр города; - отдельный вход, запасной выход; - автономное электрическое отопление; - 2 смотровых ямы; - ворота под газель; - высота.; - разрешенная мощность 20 кВт.; - свой санузел; - хорошее состояние; - телефон, интернет. Провайдер: Ростелеком; - пожарно-охранная сигнализации; - общая и своя парковки. Торг, обмен! Продажа: 20 000 000 рублей
DAEVROPA с радостью поможет вам найти лучшее решение, соответствующее вашим требованиям и финансовым возможностям. Звоните или пишите — мы всегда на связи!













































































