Офис Помещение Торговое 496,6 м²
| Арендная плата (Помесячно) | 645 580 |
|---|---|
| Цена кв.м. в год | 0 |
| Тип коммерческой | Офис |
| Площадь, кв.м. | 496 |
| Площадь участка, сот | 120 |
| Этаж | 6 |
| Коммунальные услуги включены | Нет |
| Тип здания | Бизнес-центр |
| Санузел | Совмещенный |
| Ремонт | Офисная |
| Тип парковки | На улице |
| Вход cian (avito) | Отдельный с улицы |
| Тип аренды | Прямая |
| Планировка cian | Открытая |
| Возможность написать сообщение | Да |
| Планировка avito | Открытая |
| Отделка помещения коммерческая | Офисная |
| Залог (avito) | Без залога |
| Способ связи avito | По телефону и в сообщениях |
| Вариант задания цены (avito) - Аренда | в месяц |
| Статус готовности | В эксплуатации |
| Электричество | Есть |
| Мощность электросети, в кВт | 30 |
| Удаленность от дороги (авито) | Первая линия |
| Тип здания (Avito) | Бизнес-центр |
| Населенный пункт | Ульяновск |
|---|---|
| Район города | Ленинский |
| Улица | улица Минаева |
Описание
Офис Помещение Торговое 496,6 м²
БЕЗ КОМИССИИ ДЛЯ АРЕНДАТОРА!
Номер объекта в базе # 21299
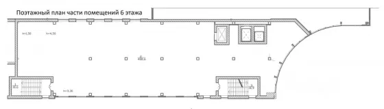
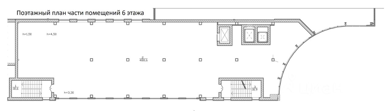
Площадь: 496 кв.м
Этаж: 6
Этажность: 6
Все коммуникации проведены
Доступ в помещение: 24/7
Количество входов: 2
Коммунальные платежи: Оплачиваются отдельно.
Электроснабжение:30 кВт
Высота потолков: 3 м
Санузел: Совмещённый
Назначение: Без профиля, любое коммерческое использование
Примечание: Полностью оснащенные помещения: пять офисов, панорамная зона с коворкингом, складные лекционные комнаты, отдельный лифт, вход с парковки. Ремонт, сантехника, вентиляция, отопление, пожарная и охранная сигнализация, эскалаторы, лифты.
В настоящий момент помещение свободно
Аренда: 645 580 рублей/месяц
DAEVROPA с радостью поможет вам найти лучшее решение, соответствующее вашим требованиям и финансовым возможностям. Звоните или пишите — мы всегда на связи!





















