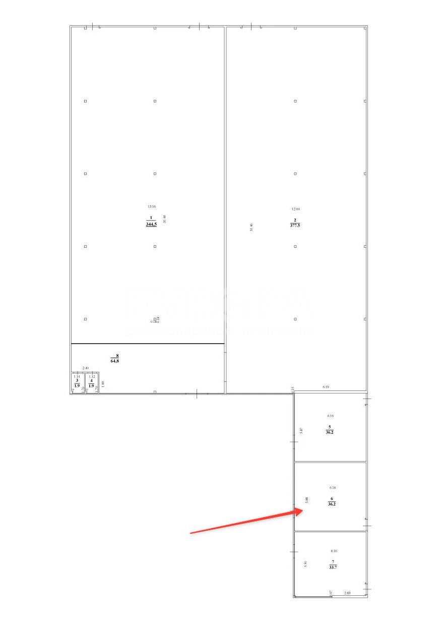
Торговое помещение 36,2 м² с отдельным входом | Потолки 3,5 м | 1 этаж
Обзор№ - 23297
| Арендная плата (Помесячно) | 54 300 |
|---|---|
| Цена кв.м. в год | 0 |
| Тип коммерческой | Торговое помещение |
| Площадь, кв.м. | 36.2 |
| Этаж | 1 |
| Коммунальные услуги включены | Нет |
| Тип здания | Торговый центр |
| Санузел | Совмещенный |
| Ремонт | Чистовая |
| Тип парковки | На улице |
| Вход cian (avito) | Отдельный с улицы |
| Тип аренды | Прямая |
| Планировка cian | Открытая |
| Возможность написать сообщение | Да |
| Планировка avito | Открытая |
| Отделка помещения коммерческая | Чистовая |
| Право собственности | Собственник |
| Залог (avito) | Без залога |
| Способ связи avito | По телефону и в сообщениях |
| Вариант задания цены (avito) - Аренда | в месяц |
| Статус готовности | В эксплуатации |
| Электричество | Есть |
| Мощность электросети, в кВт | 10 |
| Удаленность от дороги (авито) | Первая линия |
| Тип здания (Avito) | Торговый центр |
Адрес
| Населенный пункт | Ульяновск |
|---|---|
| Район города | Заволжский |
| Улица | улица Димитрова |
В избранное Торговое помещение 36,2 м² с отдельным входом | Потолки 3,5 м | 1 этаж
Торговое помещение 36,2 м² с отдельным входом | Потолки 3,5 м | 1 этаж
АРЕНДА ОТ СОБСТВЕННИКА!
Главные преимущества:
- Высокие потолки: 3,5 метра позволяют реализовать стильный дизайн или организовать антресольное хранение.
- Полная автономия: 1-й этаж, отдельный вход с улицы, доступ в помещение 24/7.
- Ресурс: Мощность 10 кВт — достаточно для кофейни, пекарни или салона услуг.
- Коммуникации: Все центральные сети проведены, собственный санузел внутри.
Условия: 54 300 руб/мес + КУ.
В настоящий момент помещение свободно
🏛Номер объекта в базе # 23297
Звоните прямо сейчас и мы подберём для Вас персональные условия аренды!











