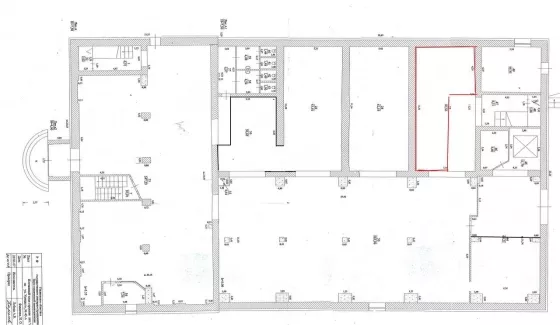
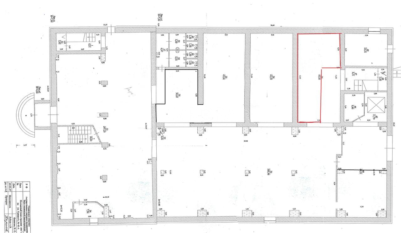
Торговое Помещение Офис 50 м²
| Арендная плата (Помесячно) | 23 000 |
|---|---|
| Цена кв.м. в год | 0 |
| Тип коммерческой | Торговое помещение |
| Площадь, кв.м. | 50 |
| Этаж | 1 |
| Коммунальные услуги включены | Нет |
| Тип здания | Бизнес-центр |
| Санузел | Совмещенный |
| Ремонт | Чистовая |
| Тип парковки | На улице |
| Вход cian (avito) | Общий с улицы |
| Тип аренды | Прямая |
| Планировка cian | Открытая |
| Возможность написать сообщение | Да |
| Планировка avito | Открытая |
| Отделка помещения коммерческая | Чистовая |
| Залог (avito) | Без залога |
| Способ связи avito | По телефону и в сообщениях |
| Вариант задания цены (avito) - Аренда | в месяц |
| Статус готовности | В эксплуатации |
| Электричество | Есть |
| Мощность электросети, в кВт | 10 |
| Удаленность от дороги (авито) | Первая линия |
| Тип здания (Avito) | Бизнес-центр |
| Населенный пункт | Ульяновск |
|---|---|
| Район города | Ленинский |
| Улица | улица Урицкого |
Описание
Торговое Помещение Офис 50 м²
БЕЗ КОМИССИИ ДЛЯ АРЕНДАТОРА!
Номер объекта в базе # 21443
Площадь: 50 кв.м
Этаж: 1
Этажность: 2
Все коммуникации проведены
Доступ в помещение: Режим работы ТЦ "Автосити" с 9:00 до 20:00 в будни и с 9:00 до 18:00 в выходные и праздничные дни.
Количество входов: 2
Коммунальные платежи: Оплачиваются отдельно (уточняйте)!
Электроснабжение: 10 кВт
Высота потолков: 3,4 м
Санузел: Совмещённый
Назначение: Без профиля, любое коммерческое использование
Примечание: Интернет в торговом центре от Ростелекома или ЕVО (Арендатор подключает нужный ему тариф). Предоставим арендные каникулы для оборудования помещения. Торговый центр "Автосити" оборудован охранно-пожарной сигнализацией. В торговом центре два сан. узла на первом этаже, горячая вода. Есть парковка для арендаторов и клиентов (перед торговым центром).
В настоящий момент помещение свободно
Аренда: 23000 рублей/месяц
DAEVROPA с радостью поможет вам найти лучшее решение, соответствующее вашим требованиям и финансовым возможностям. Звоните или пишите — мы всегда на связи!













