Офис Помещение 20 м²
Обзор№ - 19730
| Стоимость | 2 100 000 |
|---|---|
| Тип коммерческой | Офис |
| Площадь, кв.м. | 20 |
| Этаж | 3 |
| Коммунальные услуги включены | Нет |
| Тип здания | Бизнес-центр |
| Санузел | Совмещенный |
| Ремонт | Офисная |
| Тип парковки | На улице |
| Вход cian (avito) | Общий с улицы |
| Тип сделки авито коммерческая | Продажа |
| Планировка cian | Кабинетная |
| Возможность написать сообщение | Да |
| Планировка avito | Кабинетная |
| Отделка помещения коммерческая | Офисная |
| Право собственности | Собственник |
| Способ связи avito | По телефону и в сообщениях |
| Вариант задания цены (avito) | за всё |
| Мощность электросети, в кВт | 7 |
Адрес
| Населенный пункт | Ульяновск |
|---|---|
| Район города | Засвияжский |
| Улица | улица Промышленная |
В избранное Офис Помещение 20 м²
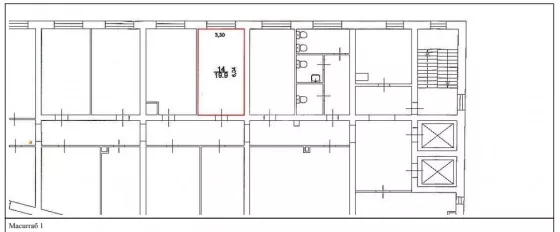
Описание Офис Помещение Свободного Назначения 20,6 м² БЕЗ КОМИССИИ ДЛЯ ПОКУПАТЕЛЯ! Номер объекта в базе # 19730 Площадь: 20 кв м. Три рядом расположенных офиса по 20 м, согласнно схемы, по отдельности или в одни руки! Этаж: 3 Этажность: 5 Все коммуникации проведены Состояние: в арендной эксплуатации! Доступ в помещение: 24/7 Электроснабжение: 7 кВт Высота потолков: 3 м Кол-во входов: 2 Санузел: Совмещённый Назначение: Без профиля, любое коммерческое использование Примечание: Развитая инфраструктура,хорошая транспортная развязка, рядом остановка общественного транспорта, с ремонтом. Продажа: 2,1 млн. рублей
DAEVROPA с радостью поможет вам найти лучшее решение, соответствующее вашим требованиям и финансовым возможностям. Звоните или пишите — мы всегда на связи!













































