База 3400 м² на 70 сотках!
Обзор№ - 15687
| Стоимость | 55 000 000 |
|---|---|
| Тип коммерческой | Отдельностоящее здание |
| Площадь, кв.м. | 3400 |
| Этаж | 1 |
| Цокольный этаж | Нет |
| Коммунальные услуги включены | Нет |
| Тип здания | Другой |
| Санузел | Совмещенный |
| Ремонт | Чистовая |
| Тип парковки | На улице |
| Вход cian (avito) | Общий с улицы |
| Тип сделки авито коммерческая | Продажа |
| Планировка cian | Смешанная |
| Возможность написать сообщение | Да |
| Планировка avito | Открытая |
| Отделка помещения коммерческая | Чистовая |
| Право собственности | Собственник |
| Способ связи avito | По телефону и в сообщениях |
| Скрыть точный адрес cian | Есть |
| Тип отопления cian | Автономное газовое |
| Вариант задания цены (avito) | за всё |
Адрес
| Населенный пункт | Ульяновск |
|---|---|
| Район города | Заволжский |
| Улица | проезд 42-й Инженерный |
В избранное База 3400 м² на 70 сотках!
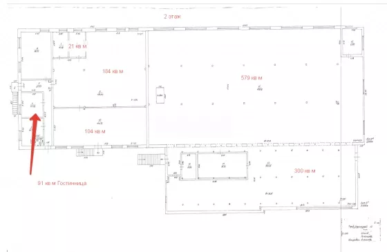
Описание Без комисси для покупателей! Номер объекта в базе # 15687 Площадь: 3400 кв.м на земельном участке 7000 м2. Этаж: 1 Этажность: 2 Все коммуникации проведены Состояние: Доступ в помещение: 24/7. Электроснабжение: 250 кВт Высота потолков: 4м. Кол-во входов: 3. Санузел: Совмещённый Назначение: Без профиля, любое коммерческое использование Примечание: Производственно-складской комплекс расположен в промзоне Нового города! Производственно-складская база, состоящая из складских помещений, свободного назначения и административных, офисно-бытовых площадей с зоной отдыха и сауной! Структура: общая площадь: 3400 кв м. Первый этаж 2405 кв м., второй этаж 1000 кв м! Склад производство 1908 кв м, офисно бытовые 497 кв м с гостиницей на втором этаже! все городские инженерные коммуникации: канализация, водоснабжение, отопление центральное. состояние: хорошее электроснабжение: 250 кВт своя трансформаторная подстанция! высота потолков: 4 м 4 входа, Наличие парковки для автомобилей и стоянки для фур! назначение: склад, производство! Примечание: Офисы мебелированы, административная часть представляет собой двух этажное здание, обширные раздевалки, душ, кабинеты, санузел. Охраняемая закрытая территория, Благоустроенная территория вокруг здания, забетонированная. Транспортная инфраструктура, асфальтированная автомобильная дорога прямо к базе! На второй этаж есть грузовой лифт! Продажа: 60 000 000 рублей
DAEVROPA поможет вам найти оптимальное решение, соответствующее вашим требованиям и бюджету - звоните/пишите!
DAEVROPA отвечает на сообщения максимально быстро!

















































































